2025年11月10日 建筑材料工业技术情报研究所 建筑材料工业技术监督研究中心 欢迎您来访 ! 内部办公
首页 行业资讯 技术期刊 技术标准 技术会议 技术培训 技术咨询 检验测试 科技动态 网络党校 关于我们 图书馆检索
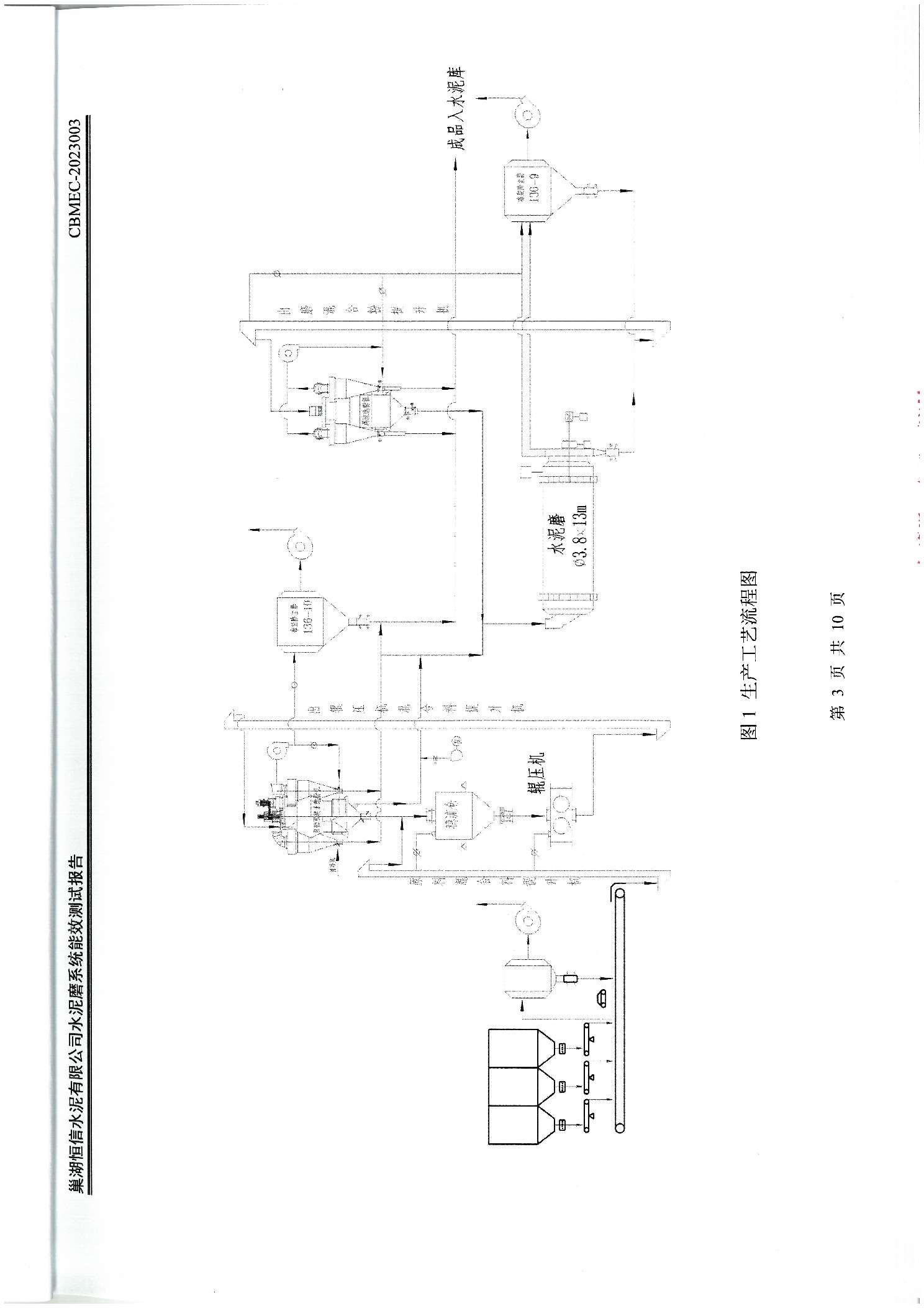
  • 1
 您所在的位置:首页>资讯首页>行业资讯>巢湖恒信水泥有限公司水泥磨系统能效检测报告2023003->正文
巢湖恒信水泥有限公司水泥磨系统能效检测报告2023003

类别:行业资讯   日期:2023-4-12     来源:国家建材技术图书馆   点击率:1104        



打印此文】【关闭窗口
免责声明:

① 凡本网注明“来源:建筑材料工业技术情报研究所 建筑材料工业技术监督中心"的所有文字、图片和音视频稿件,版权均为"建筑材料工业技术情报研究所 建筑材料工业技术监督中心"独家所有,任何媒体、网站或个人在转载使用时必须注明"来源:建筑材料工业技术情报研究所 建筑材料工业技术监督中心”。违反者本网将依法追究责任。
② 本网转载并注明其他来源的稿件,是本着为读者传递更多信息之目的,并不意味着赞同其观点或证实其内容的真实性。其他媒体、网站或个人从本网转载使用时,必须保留本网注明的稿件来源,禁止擅自篡改稿件来源,并自负版权等法律责任。违反者本网也将依法追究责任。
③ 如本网转载稿涉及版权等问题,请作者在两周内尽快来电或来函联系。
行业资讯 组织机构 技术期刊 技术会议
技术培训 技术标准 技术咨询 检验测试
国家建材图书馆 科技动态 关于我们
        技术培训 更多>>  
        技术会议 更多>>  

京ICP备06011358号-20
主办单位:建筑材料工业技术情报研究所 建筑材料工业技术监督中心 支持单位:中国建筑材料联合会
联系方式:010-51164608 技术支持:010-65761182
地址:朝阳区管庄东里甲1号
Copyright © 2003 - 国家建材技术图书馆 All rights reserved.版权所有